Architecture contemporaine, écologique et dans un respect étroit de l’homme et de son environnement.


renovation-ellezelle-3d

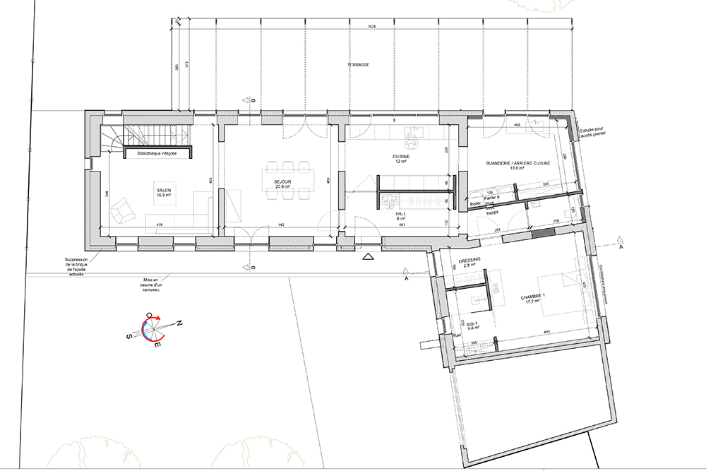
Rénovation et transformation d’une habitation à Ellezelles

Transformation et rénovation d’une habitation à Ellezelles. Nous repensons l’aménagement et la disposition des espaces de vie. Ceux-ci seront plus ouverts sur le vaste jardin à l’arrière. Un bardage en liège grisonnant naturellement et une pergola apportent leur touche personnel.

Un soin tout particulier est apporté à l’isolation pour tendre vers un habitation très basse énergie. Les matériaux utilisés sont sains et respectueux de l’environnement pour le bien-être des habitants et le respect de notre planète.